C-Stores & Travel Plazas
Partner Your C-Store or Travel Plaza with a Del Taco Franchise
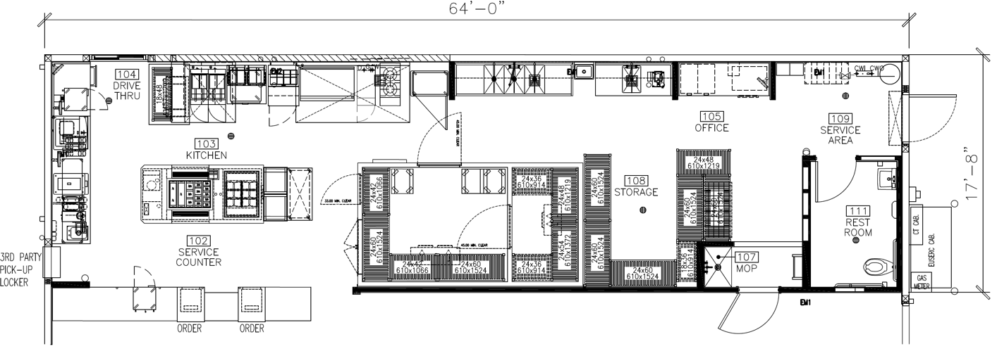
Introducing Del Taco's New Fresh Flex Store Design
The bold, new prototype holistically reconceptualizes Del Taco restaurants. The Fresh Flex design's striking exteriors and distinctive interiors evoke a contemporary feel, while lowering net investment costs, improving real estate flexibility, and providing ultimate convenience for guests and operators.
With innovative additions like third-party pick-up stations and double drive-thru lanes with a dedicated lane for mobile orders and delivery pickups, the future-focused model optimizes operational efficiencies and caters to modern consumers' expectations: accessibility, speed of service, & brand transparency.


Expanded Real Estate Access Helps Lower Net Investment

App-Enabled On & Off-Premise Dining Options
Ultimate Convenience Platform
In The News
Del Taco Expands in the Convenience Channel
"The QSR chain adds two c-store locations in Arizona as it prepares to enter new markets."
Convenience Store News - 2/14/2024
C-Store Site Requirements
Monthly Gallonage
We're Looking for C-Stores with a Minimum Monthly Gallonage of 125,000
Spacing Requirements
Approximately 1,200 Square Feet for Kitchen-Only Design with Drive-Thru
Drive-Thru
Drive-Thru is Required for All Convenience Store & Travel Plaza Locations
Traffic Counts
We Target Areas with Traffic Counts of +20,000 Cars per Day
Interior Dining
You'll Need an Additional 500-600 Square Feet for Dining Room (If Included)
Thoroughfare Access
Locations with Access to Major Highways and Intersections Preferred
Flexible Layouts & Designs
At Del Taco, our flexible construction plan gives us the ability to fit the unique needs of your c-store / travel plaza location. Whether you want to build our base ~1,200 square foot kitchen-only model with a drive-thru or have the space to add interior seating, we have designs to help you maximize your space.
C-Store Gallery
The Del Taco prototype restaurant features a contemporary and colorful interior and exterior design with visual cues highlighting Del Taco's commitment to freshness and quality throughout the restaurant. Whether you’re looking to build at a convenience store or travel plaza, our flexible restaurant footprint allows you to gain access to virtually any real estate opportunity.




Menu of Venues
Our flexible construction plan allows us to build Del Taco locations in a wide variety of traditional & non-traditional venues including free-standing buildings, endcaps, co-development, convenience stores (c-stores), travel plazas, airports, stadiums, college campuses, military bases, and much more.
PREFERRED SITE CRITERIA
At Del Taco, we have a wide variety of land, demographic, and site characteristics we look for when identifying a location for a new restaurant. Watch this short video or scroll down to learn more about the exact specifications we prefer.
Land Size
+25,000 Square Feet
Building Size
+1,200 Square Feet
Population
+25,000 (2 Mile)
Employment
+10,000 (2 Mile)
Household Income
Average $65,000
Traffic Counts
+25,000 Daily
Frequently Asked Questions
Answers to some of the most popular real estate & franchising questions we receive at Del Taco.
-
Which Territories Are Available to Open My Del Taco?
Del Taco is based out of beautiful Orange County, California and has had a long and prosperous track record of opening successful stores in the Western region of the United States. In recent years, Del Taco has successfully opened new markets in states including Oklahoma, Georgia, Florida, Michigan etc. and is looking to carry on this tremendous momentum in selected markets throughout the United States. We are currently looking for capable, franchise partners to bring our superior product to markets where there is a need for a fresher alternative for Mexican fast food. Click here to view our map of available markets.
-
Does Del Taco Help Me Find Real Estate?
Whether you decide on a new free-standing building or a conversion of an existing building, we have flexible restaurant footprints to help you gain access to many real estate opportunities. Del Taco has a sophisticated in-house Real Estate Department that works hand in hand with franchisees and preferred commercial brokers. This team will work to create a market plan map and identify key trade areas to ultimately find suitable real estate locations for each future Del Taco. Through sophisticated site selection and market planning support, as well as an in-house construction and design team, we support you every step of the way.
-
Will Del Taco Help Build My Restaurant?
Yes! Franchisees are assigned a Construction Manager who will support them throughout the construction process.
-
Can I Use My Own Real Estate Broker?
Yes, we allow franchisees to use their own real estate brokers with several exceptions. For all third-party brokers and agents, we require an internal vetting process with our Real Estate Leadership Team to ensure they have the experience required to find and identify commercial real estate that meets the standards for Del Taco franchise restaurants.
-
Do I Have to Live in the Market Where I Build My Stores?
Today's competitive quick-serve restaurant industry calls for ownership groups with strong restaurant operational backgrounds. To qualify, your group must have at least one person with recent multi-unit restaurant operations experience and the ability and desire to enrich people’s lives through exceptional customer service, guest experience, and employee satisfaction. This operating partner must live in the market and have at least a 10% ownership in the Del Taco operations.
-
How Does Del Taco Find Locations to Build Restaurants?
We use a multi-pronged approach to help you find real estate for your markets. Our team can give you a comprehensive market analysis utilizing various tools. This will give you a better understanding of options to build your restaurant.
-
Industry Leading GIS Software: We utilize sophisticated GIS software to help identify potential market points using dozens of data points to narrow down your search for great potential locations.
-
Boots-on-the-Ground: Additionally, we also employ a traditional "boots on the ground" approach by having our internal Real Estate Development Managers visit markets to confirm what our GIS software shows as potential locations.
-
Leveraging Third Parties: In some cases, we will work with third-party brokers to provide additional insights to expand on our digital and physical site identification tools.
At Del Taco, we are here to support you with all your real estate needs.
-
-
Does Del Taco Offer Non-Traditional Franchise Locations?
Yes, we do! Our flexible design allows us to adapt our model to fit in areas such as stadiums, airports, college campuses, and many others!
-
What Are the Site Requirements to Build a Del Taco?
From high school seniors to senior citizens, Del Taco has broad appeal in communities with these characteristics:
-
Population: 35,000+ residential population with 10,000+ daytime population in primary trade area
-
Median Household Income: $40,000 – $100,000
-
Age Groups: Prefer areas with higher concentrations of 18 – 49-year-olds
-
Ethnicity: Menu appeals to broad consumer audience
-
Traffic: Minimum 25,000+ cars per day at intersection
-
-
Does Del Taco Own the Real Estate or Can I Purchase My Own?
As a franchisee, you will be required to purchase or lease the property where your restaurants are located. We have an entire real estate and leasing team here to help you find available real estate and assist with lease negotiations.
READY TO GET STARTED?
Please submit the form below to begin your franchising journey with Del Taco!
Del Taco vs Dunkin: Which Franchise Is Best?
Jul 14, 2025
Are you searching for the differences between franchising with Del Taco vs Dunkin Donuts? At Del Taco, we understand...
How Much Does a Burrito Franchise Cost?
May 12, 2025
Are you interested in understanding how much a burrito franchise costs? If so, you’re not alone. At Del Taco, some of...
How Much Does a Mexican Restaurant Franchise Cost?
May 12, 2025
Are you interested in learning how much a Mexican restaurant franchise costs? If so, you’re not alone. At Del Taco,...