Land Size
+25,000 Square Feet
At Del Taco, we have a wide variety of land, demographic, and site characteristics we look for when identifying a location for a new restaurant. Watch this short video or scroll down to learn more about the exact specifications we prefer.
+25,000 Square Feet
+1,200 Square Feet
+25,000 (2 Mile)
+10,000 (2 Mile)
Average $65,000
+25,000 Daily
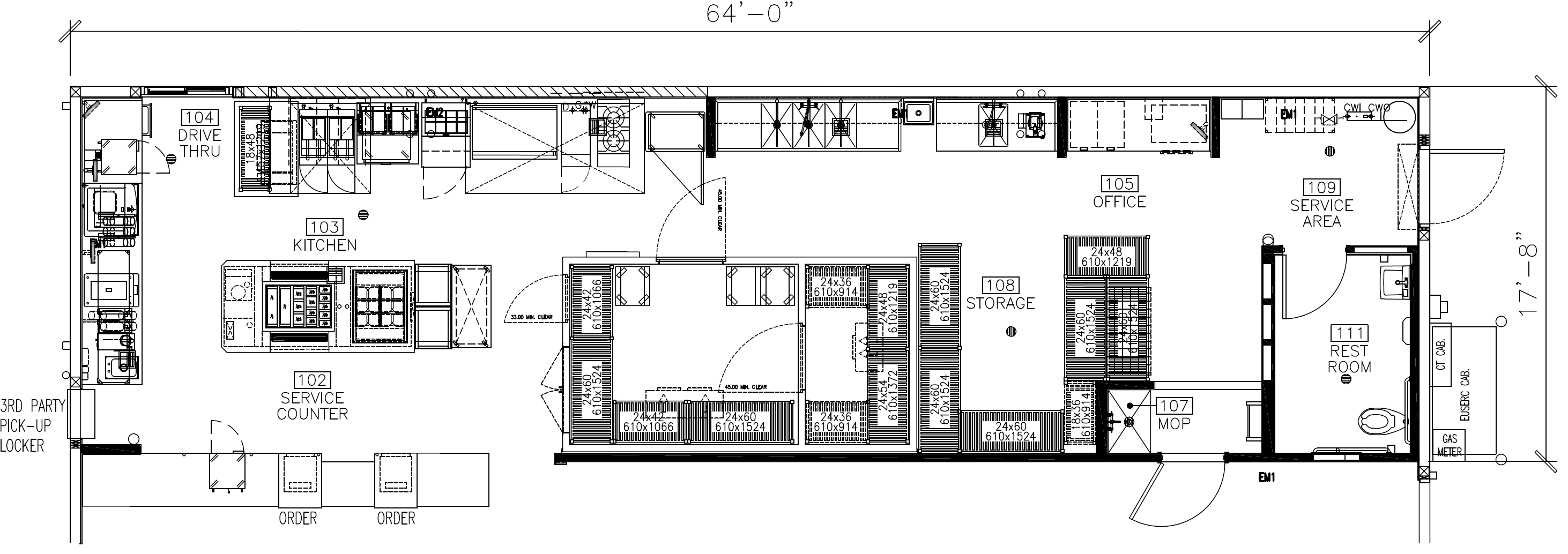
Our flexible construction plan allows us to build Del Taco locations in a wide variety of traditional & non-traditional venues including free-standing buildings, endcaps, co-development, convenience stores (c-stores), travel plazas, airports, stadiums, college campuses, military bases, and much more.
At Del Taco, we look for the following physical features when prospecting sites for our latest prototype: free-standing, out-parcel pads, end cap, ground lease & purchase, ingress / egress, visibility & signage, and we require a drive-thru for all locations.

Jul 14, 2025
Are you searching for the differences between franchising with Del Taco vs Dunkin Donuts? At Del Taco, we understand...
May 12, 2025
Are you interested in understanding how much a burrito franchise costs? If so, you’re not alone. At Del Taco, some of...
May 12, 2025
Are you interested in learning how much a Mexican restaurant franchise costs? If so, you’re not alone. At Del Taco,...